Nieuwbouwplan
De wijk Kloosterveen breidt uit. Op de akkers tussen de huidige bebouwing en de Norgervaart is ruimte voor 500 tot 2.000 nieuwe woningen. De nieuwbouw komt tegen de bestaande wijk aan te liggen. De eerste nieuwe buurt in de uitbreidingswijk is Kloosterakker. Hier kunt u ruim, comfortabel en groen wonen. In totaal is er plek voor 500 woningen in deze buurt.
Kloosterakker
Kloosterakker ligt ten westen van Kloosterhage en Kloosterkade, tussen de Domeinweg en de Hoofdvaartsweg. Op de kaart hieronder ziet u een plattegrond van de nieuwe woonwijk. Er is plek voor verschillende woningen: vrijstaand, twee-onder-een-kapwoningen en rijwoningen. Een deel wordt projectmatig gebouwd, daarnaast verkoopt de gemeente kavels waar u uw eigen woning op kunt bouwen. Inmiddels wordt er volop gebouwd in de wijk.
Inrichting Kloosterakker
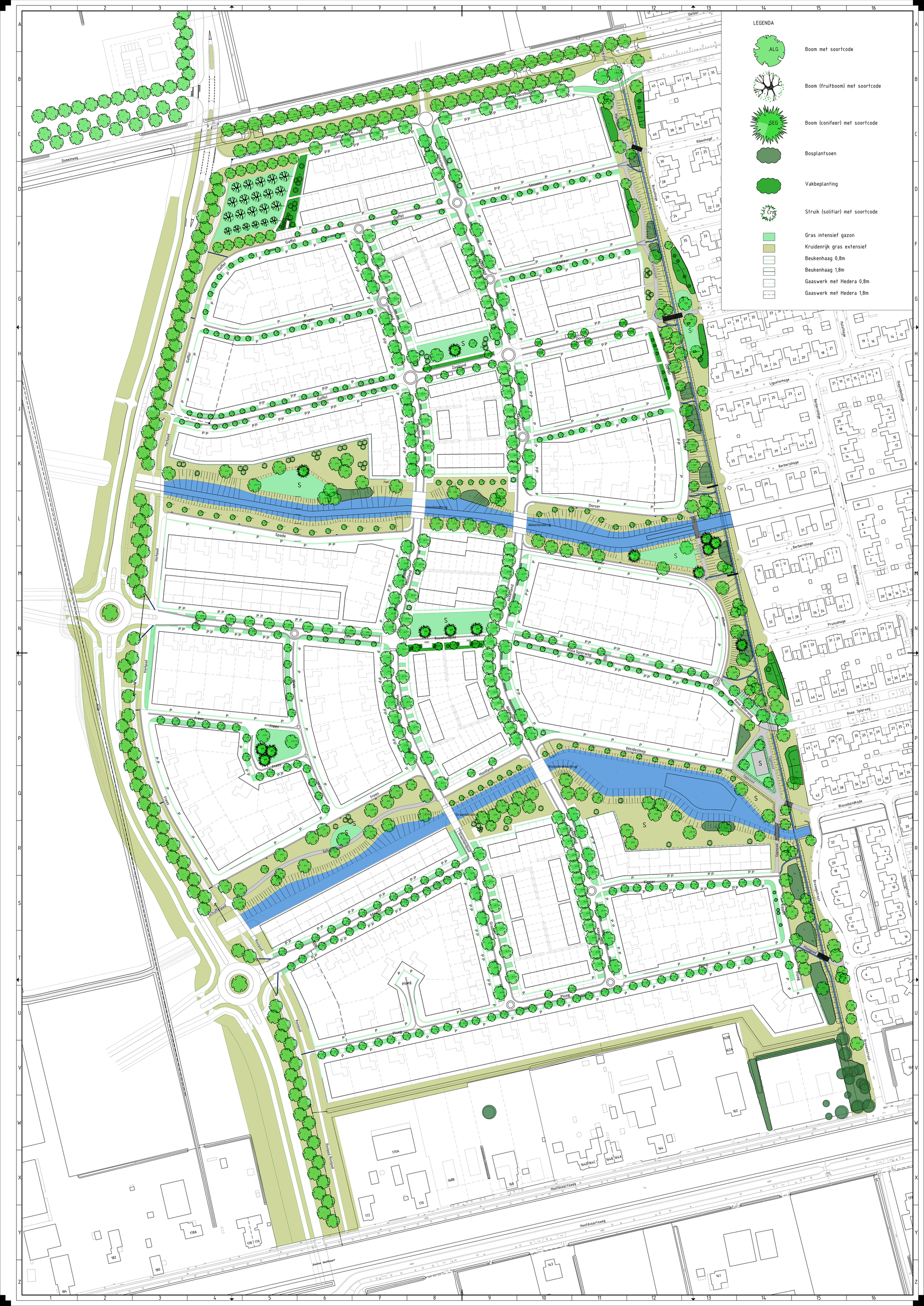
De inrichting van Kloosterakker heeft het thema 'akkers'. De akkers lopen van Oost naar West. Op elke 'akker' wordt met verschillende kleuren steensoorten gebouwd, alsof er graan, mais, kool en aardappels zijn verbouwd. In Kloosterakker is veel aandacht voor duurzaamheid. Zowel op het gebied van energie, klimaat, water, biodiversiteit als mobiliteit. Hier leest u meer over op de pagina ‘Duurzaam bouwen’.
Een groene wijk
In Kloosterakker is veel ruimte voor groen, water en natuur. Een brede groenstrook verbindt Kloosterakker met Kloosterveen. Daarnaast komen dwars door Kloosterakker twee brede groene zones te liggen. Hier kunnen toekomstige bewoners elkaar ontmoeten. Voor kinderen is er volop ruimte om te spelen.
Door deze groene zones lopen brede watergangen. Op de flauwe oevers van deze watergangen kunnen riet en verschillende soorten oeverplanten groeien. Zo kan iedereen, zowel mens als dier, het water en het groen op zijn eigen manier beleven en ervan genieten. De watergangen in Kloosterakker komen uit in een landschappelijk, recreatief gebied langs de rand van de Norgervaart. Vanuit Kloosterakker kunt u straks lopend of op de fiets naar dit gebied.
Ook in de woonstraten is er aandacht voor groen. We planten beukenhagen op de woonkavels. Daardoor krijgen de woonstraten een groene uitstraling. Zeker in combinatie met de bomen die in elke straat een plek krijgen. De meeste bomen komen van nature in Nederland voor, wat ten goede komt voor het vergroten van de biodiversiteit.
Hieronder kunt u het groenplan van Kloosterakker bekijken. Komt u er niet uit? Mail dan naar info@assen.nl.
Een bijzondere geschiedenis
In Kloosterakker is onlangs een waardevolle archeologische plek gevonden: een jachtkamp uit de periode 7000 – 6000 voor Christus. Deze vindplaats gaan we bij de inrichting van het gebied inpassen en zichtbaar maken.
De eerste bewoners van Kloosterakker
Sinds Koningsdag 2023 hebben Engbert en zijn vrouw in de nieuwe woning geslapen. Wij hebben contact met hen opgenomen en gevraagd hoe deze eerste nachten zijn bevallen. Lees het hele verhaal van Engbert en zijn vrouw op deze pagina.
